Logótipo da Faculdade de Arquitetura Semana 07

Mestrado Integrado em Arquitetura


Representação Digital

Professor Luís Romão
2025/2026



Aula 13 - 21.10.2025



Introdução das plantas em AutoCAD.
Foi selecionada a planta à escala 1:1000 da área de intervenção referente à disciplina de Projeto.

Assim que a imagem é importada para o AutoCAD, redimensiona-se para uma folha A0, recorrendo ao command: RECT. Depois, utiliza-se o command: SCALE> all> r> l, identificando o ponto de base e a referência, para redimensionar a imagem dentro da folha A0 desenhada.



Novamente, utilizou-se o comand: SCALE para ajustar a imagem à escala real e, em seguida, proceder à colocação da planta com duas escalas: 1:1000 e 1:100.

Planta- 1:1000

Planta- 1:100

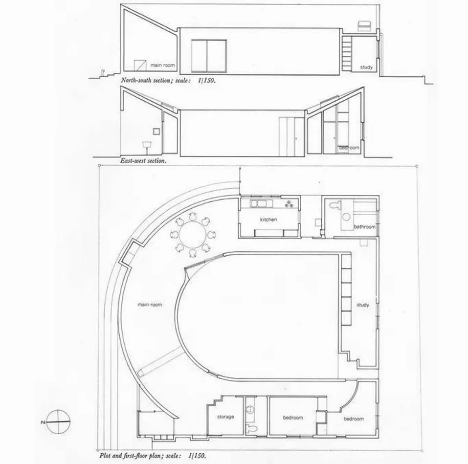
Deu-se início ao desenho da planta, utilizando a U House de Toyo Ito.



Meteu-se o desenho aproximadamente à escala real, com referência às linhas auxiliares.




Aula 14 - 23.10.2025



Meter a planta e os cortes em uma folha A4



Desenho do da planta apenas das paredes exteriores, e do perfil.



Command: Polyline



Command: EXTRUDE > Path - é o comando utilizado para criar formas 3D. Neste caso, o >path permite selecionar apenas a linha de contorno que o comando usará como referência, seguindo o perfil.



Meter a parede que fecha o U, command: UNION, para unir a parede com o resto do da casa



Para finalizar, fazer os cortes longitudinal e transversal mais a planta





Voltar