Faculdade de Arquitetura da Universidade de Lisboa

Mestrado Integrado em Arquitetura 2C


Representação Digital

Professor Luís Romão
2025/2026

Leonor Soares

Semana 07


Aula 13 e 14

Introdução para escalar plantas. Para isso utilizamos a planta do Bairro Alto que está disponivel página Miarq2 .
Guardamos a Planta 1:1000 CAD . Para isso criamos as layers: aux e folha
Importamos para dentro do AutoCad a planta com o comando, IMPORT. O ficheiro apesar de indicar que está no formato A0, estava ligeiramente alterado, para corrigir isto criamos com o comando, RECTANG, um retângulo com tamanho de um A0. Depois utilizamos o comando, SCALE, para escalar a planta com o retângulo, utilizando dois pontos da planta com os pontos do retângulo.




Criamos dois layouts em formato A0 e um na escala 1/100 e outro na escala 1/1000
PLanta 1/100 A0
PLanta 1/1000 A0

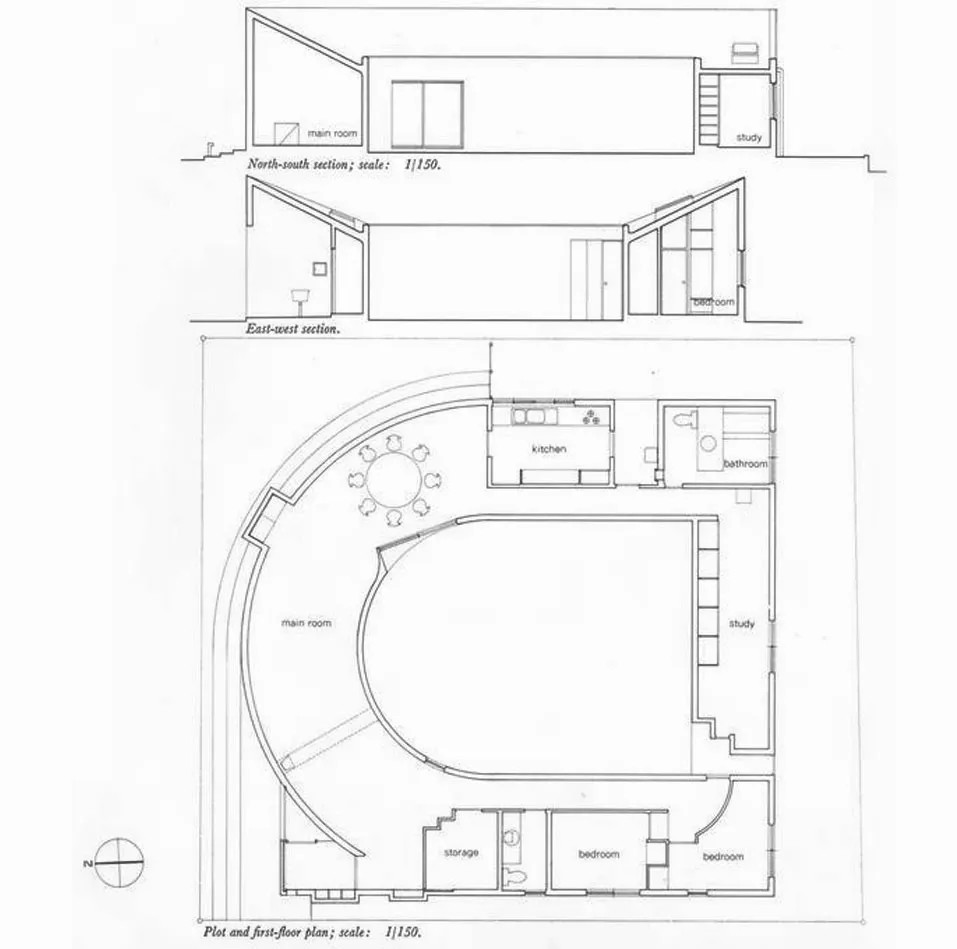
Início de novo exercício onde recriamos uma planta e os seus cortes em representaçãO 3D.
Importámos uma planta e cortes de Uhouse de Toyo Ito em formato jpeg para o AutoCAD.

Para isso criamos as seguintes layers.

Desenhámos linhas auxiliares que nos ajudassem a definir os limites das paredes. Utilizando os comandos: XLINE, OFFSET e PLINE.

Com o comando EXTRUDE, demos espessura as paredes e com o comando SECTION fizemos a planta e cortes, transversal e longitudinal.



Criamos um layout e com o comando MVIEW adiconamos 3 janelas como o planta e os dois cortes cada um na sua respetiva janela, com o comando
-VPOINT colocamos todas as janelas em verdadeira grandeza.


Voltar