Faculdade de Arquitetura da Universidade de Lisboa

Mestrado Integrado em Arquitetura 2A


Representação Digital

Professor Luís Romão
2025/2026

Bárbara Moreira

Semana 04

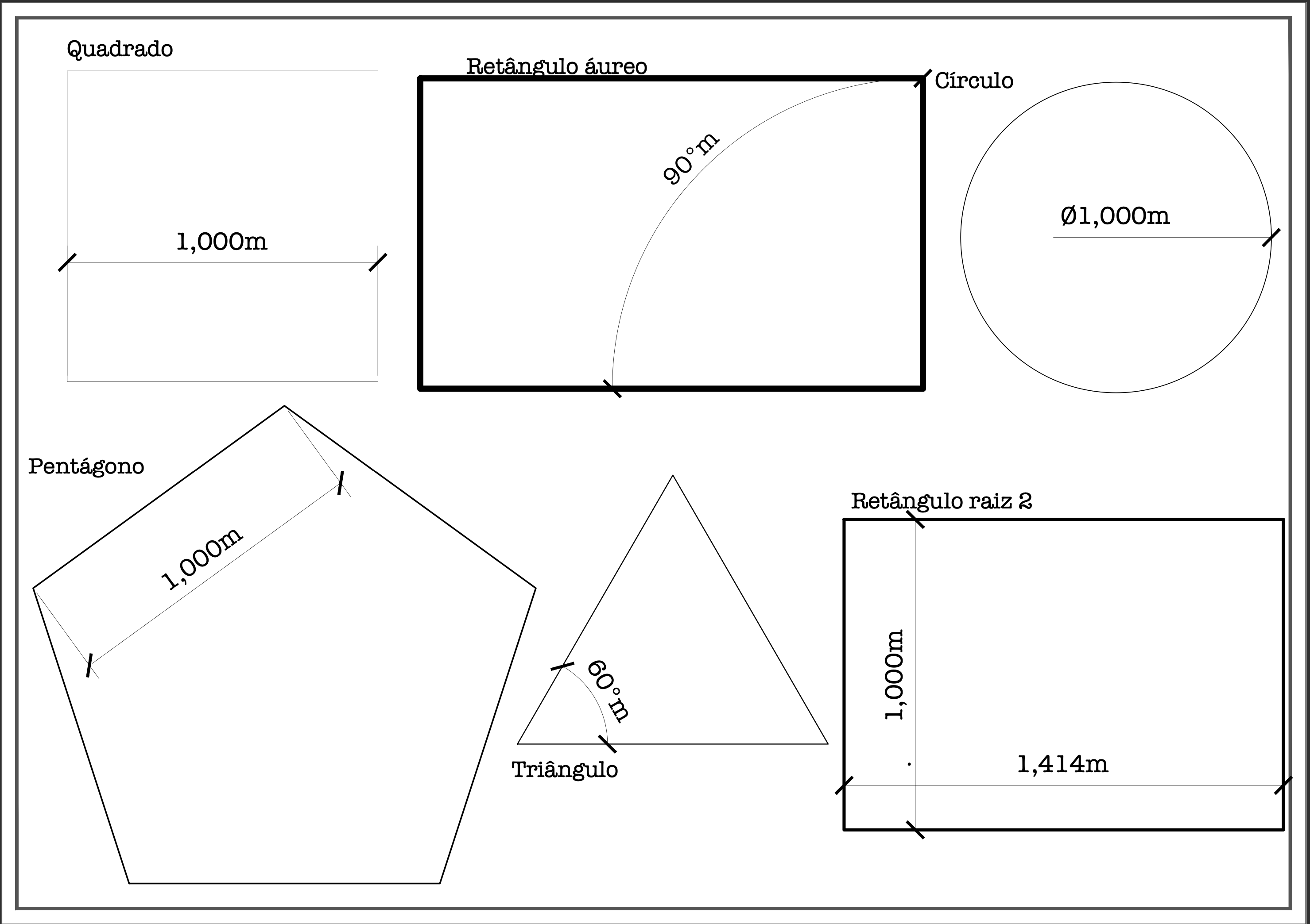
Continuação de desenhos de figuras geometricas em AutoCAD. Criação e persnaliza&cudila;ç&atil; de caixas de texto e criação de cotas .

Mudança de grossuras de linhas de acordo com as cores escolhidas para cada figura . Utilização de ferramentas para ao imprimir a linhas ficarem todas de cor preta



Criação de novo template Uso desse novo template para começo de outro exercicio que consiste em criar um cubo em 3D








Voltar