Faculdade de Arquitetura da Universidade de Lisboa

Mestrado Integrado em Arquitetura 2B


Representação Digital

Professor Luís Romão
2025/2026

Tiago Filipe Silva

Semana 07


Conclusão do exercício de criação de parábolas.


PARÁBOLA A:

Criação da primeira parábola com auxílio ao comando: SPLINE.




PARÁBOLA B:

Criação da segunda parábola, mais rigorosa.








PARABOLOIDE:

Construção de um paraboloide a partir da segunda parábola.








Início de um novo exercício de importação e manuseamento de uma planta, relacionada com a disciplina de Projeto, num novo ficheiro AutoCAD.

Importação da planta de duas maneiras diferentes, através dos comandos: IMPORT e PDFATTACH.

Ajuste da planta a um retângulo com as medidas de um A0 e posteriormente a sua colocação num layout A0 e mudança da escala de 1:1000 para 1:100.








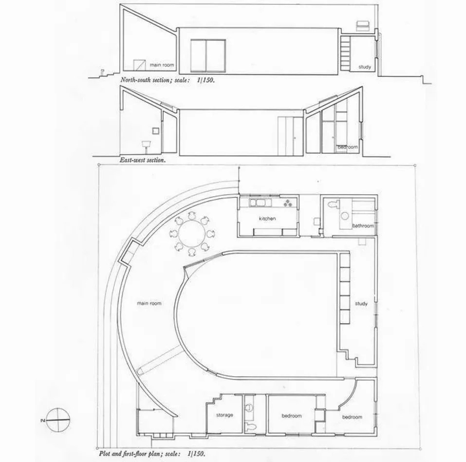
Início de um novo exercício de recriação de um projeto do arquiteto Toyo Ito, denominada U HOUSE , num novo ficheiro AutoCAD.

Descarga de uma imagem com planta e cortes da casa.

Abertura da imagem no Autocad, através do comando: ATTACH

Criação de retas para escalar o desenho e definir a forma da casa através de retas, (XLINE) e (POLLYLINE).




Através da forma da base e de um perfil, criação do formato da casa e fechamento.






Criação de três secções na figura, uma planta, um corte transversal e um corte longitudinal.







Voltar