Faculdade de Arquitetura da Universidade de Lisboa

Mestrado Integrado em Arquitetura


Representação Digital

Professor Luís Romão
2025/2026
2C

Mariana Carvalho

Semana 04

Aula 7 - Dia 30/09


Continuação do exercício das figuras geométricas, tendo como
Revisão e transmissão de comandos de trabalho como units, saveas, onsap e draftingsettings de forma a programar a área de trabalho em AutoCad.
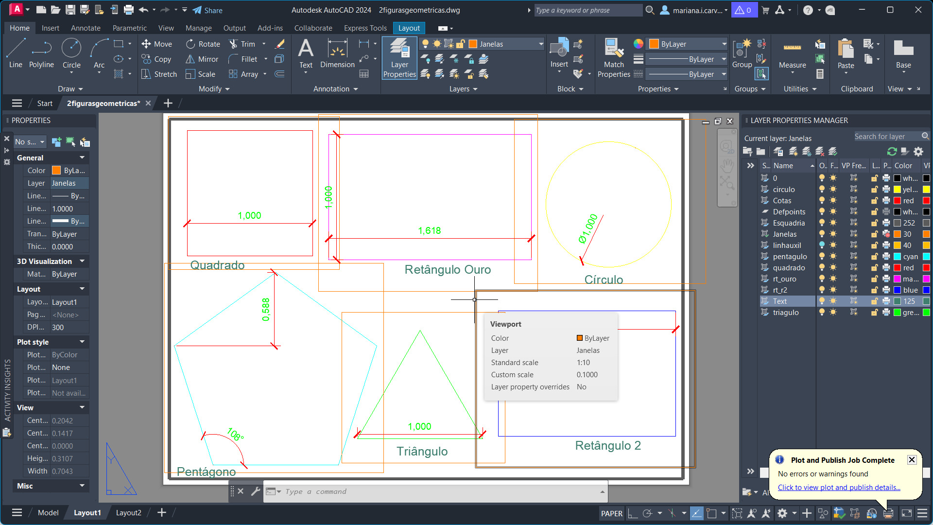
Continuação do exercício das figuras geométricas, trabalhando as layers e suas funcionalidades. Concretização das figuras geométricas tais como um círculo, quadrado, triângulo, pentágono e dois retângulos através de comandos como: line, circle e polygon e move e suas designações, por exemplo d, e, cen..



Aula 8 - Dia 02/10


Continuação do exercício das figuras geométricas, transformando e executando as mesmas através de translações tendo em conta os seus centros utilizando comandos tais como circle com referêcia em 3 pontos, move e erase. .
Introdução sobre a folha de Layout. Comunicar de comandos como Pagesetup e como configurar o mesmo de forma a preparar o ambiente de trabalho no Layout. Trabalhar com layers novas para identificação de elementos no layout e concretização de uma esquadria através de comandos como Xline, offset, trim para cortar linhas e fillet para unir as mesmas nos cantos. Terminar de aula aprendendo mais sobre o comando Pedit e suas definições como J de Join e multiple para retificar grossura da esquadria.







Voltar