Faculdade de Arquitetura da Universidade de Lisboa

Mestrado Integrado em Arquitetura 2C


Representação Digital

Professor Luís Romão
2025/2026

Mariana Martins

Semana 07


Aula 13 - 21/10/2025:
- Adequar um ficheiro em pdf no AutoCad.
- Guardar o documento na pasta.
- Abrir novo ficheiro Cad.



Comando IMPORT:




OU

- Arrastar o documento para o Cad.



- Adicionar uma Layer, folha.


- Desenhar uma folha real, com as dimensões reais.
Comando RECT (RECTANG):


Comando SCALE:


Comando SCALE:


- Abrir zona Layout e criar 2 novos, "escala_1_1000" e "escala_1_100".

Comando PAGESETUP:








- Adicionar uma Layer, Janelas.


Comando MVIEW:


Comando ZOOM:






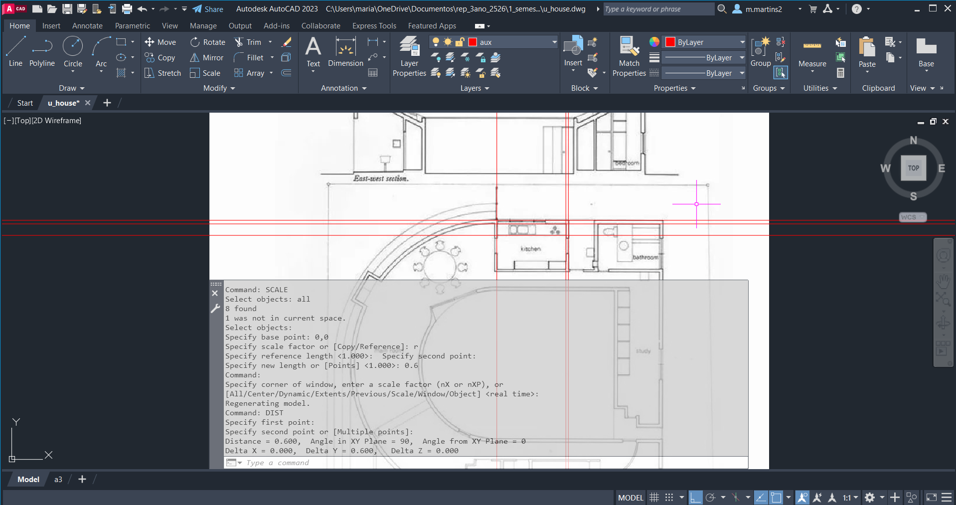
- Exercício 6, planta da casa "u house" de Toyo Ito.
- Abrir novo ficheiro Cad.



Comando IMAGEATTACH:




Comando XLINE:




Comando OFFSET:


Comando SCALE:



Aula 14 - 23/10/2025:
(Falta)



Voltar